UBS Collection

UBS031

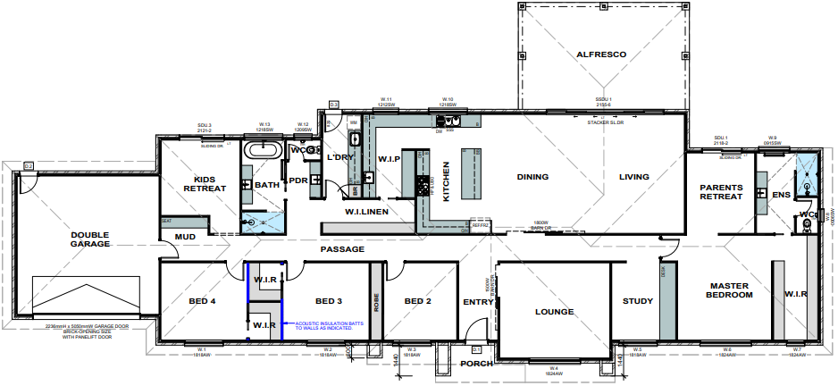
Floorplan

ISO
4
Shower
2
Car
2
House width
37.91m
House depth
17.47m
House size
45.52sq

Looking for more than just a home?

Save time and stress with an experienced team of builders that can transform your new home and backyard with our sheds and pools.

Mildura Sheds

UBS Sheds

Our experienced team also specialise in sheds of all sizes for the small home shed to the acreage shed.

UBS Pools

What home is complete in Mildura without a pool? Discover how we can enhance your backyard and complete your vision with a pool.

Enquire Now

Download Brochure

We’re excited to hear you like the UBS031 home design.

Simply click the button below, enter your name and email and we’ll send a brochure to your email.

More Home Designs

Contact

03 5021 4524

info@ubsmildura.com.au

8 Seventh Street, Mildura VIC 3500

Head Office

8 Seventh Street, Mildura VIC 3500

Mon – Fri 9.00am – 5:00pm

UBS031 Brochure Download

"*" indicates required fields

This field is for validation purposes and should be left unchanged.
Name*